唯一不变的是变化本身。
——斯宾塞·约翰逊
顺“势”而为
因势而谋,应势而动,顺势而为。
过去、现在、未来,凝练出宏大的时间维度,
让人们得以在纵横捭阖的时间洪流里,
凝望历史,正视当下,展望未来。
CHANGE
变革-
岩板
土与火的淬炼
从古至今
它的每一次变革
每一回前行
皆是“变则通,通则达”的实践结果
随着岩板这一新物种的急遽兴起
顺辉重新布局岩板版块
开启品牌的迭代升级之路
请将手机横屏

P. 01

P. 02

P. 03

P. 04
ART GALLERY
美术馆计白当黑-
《桃花源记》有云
初极狭 才通人
复行数十步 豁然开朗
顺辉岩板展厅入口平缓
进入大堂有豁然开朗之感
层高7 米 天花饰以黑色不锈钢镜面
延拓空间 弱化其他材质的存在感
譬若国画所讲求的计白当黑
纸笔落 留白三分 韵味悠长
以内敛空间凸显展陈效果
请将手机横屏 
P. 05

P. 06

P. 07
ONE TAKE
一镜到底-
场景体验与系统标识
以电影中的长镜头手法解构空间
形塑明晰动线 不折返 一“镜”到底
墙及地面运用不同岩板
区隔出客厅 餐厅 厨房
卫浴 选材区 洽谈区的不同场域
客厅的对纹电动门 客餐区的小园景
餐卫的色调衔接等力求介入设计
将场景转换消弭于无形
让观者沉浸式地体验其中
请将手机横屏

P. 08

P. 09

P. 10

P. 11
T GALLERY
升级-
设计团队首创式地引入意大利板材标准
对岩板产品的规格 面材 尺寸 适用场景等
参数进行系统化梳理
并形成行之有效的可视性标识体系
让客户多维度地了解产品
填补了国内展厅设计在标识版块上的空白

P. 12

P. 13

P. 14
ARTSTAGE
艺术舞台-
大堂是艺术的舞台
顺阶而上岩板于阶梯的正侧面
形成自然连纹
堪为神斧天工
上墙落地
产品极为熨帖地呈现
不争不抢恰到好处

P. 15

P. 16

P. 17
一方水景 悬挂着粗犷的岩石装置
不规则楼梯营造出山石嶙峋之状
自然意态的细腻描摹
契合了顺辉岩板“取法自然”的初心
游走大堂 庭院理水 堆山叠石
颇得中式园林欲藏于露的妙趣也

P. 18
新物种 新材料
势必也带来新运用
岩板除了上墙 铺地之外
超薄尺寸可作为饰面板
创造出无限可能

P. 19

P. 20
MONOLOGUE
独白-
中国传统文化是根
古为今用 创新再造 方能一展经典之美
入展厅 一尾色彩斑斓的鲤鱼栩栩如生
鱼身舒展上游 裙尾层层叠叠
体态流线 轻盈
这是顺辉岩板联手艺术家陈健珊
创作的岩板壁画 顺鲤成章
它纳入铜凿剪纸的非遗文化技法
在大漆系列岩板的基础上采用炫彩釉复烧
一侧置有同样来自佛山民间艺术社创作的
竹编船只装置 灵动自然 呼应在地文化


P. 21

P. 22
空间是有记忆的
这一独特的彰显形式与空间表达
折射出品牌对当下和自我的思考
如何让传统技艺 工艺与当代设计相融
活化非遗文化 赋能产品
设计师 艺术家 品牌的三方联动
虽然过程充满挑战 但最终得以完美呈现
彰显出匠心独具的人文情怀和社会担当
ART FURNITURE
艺术家私-
黑白灰的底调之下
软装陈设偏向挑选
富有视觉冲击力的艺术家私
跳跃的色彩 创意的造型
柔软的丝线与硬质的灯管
好似韧带与骨骼
相互连接支撑构成轻盈的光网

P. 23

P. 24

P. 25

P. 26

P. 27
艺术与人文
传统与创新
诗意与理性
如斯缓缓奏响
静静流淌
-

P. 28

P. 29
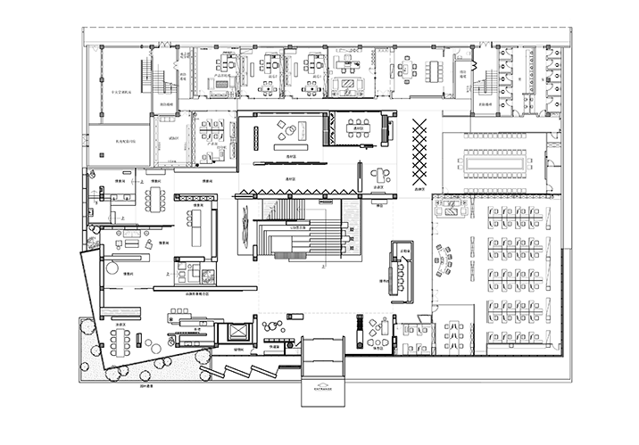
ANALYSIS DIAGRAM
展厅平面图-

顺辉岩板总部平面图 P. 30
DESIGNER

设计师:蔡祝源

The end · Thank you
文字提供:LJ看设计

更多精彩
请关注“顺辉岩板”公众号!
ShunHuiTech

扫码 关注我们
岩板系统制定者 顺辉岩板
● 营销中心电话:400-669-3388
● 传真:0757-85331671
● 微信公众号:顺辉岩板
● 地址:佛山市禅城区南庄镇华夏陶瓷博览城陶博一路十一座